工程快报——西安高新一中改扩建暨社会共享停车场项目
项目简介
西安高新一中改扩建暨社会共享停车场项目位于高新区唐延路与科技三路东北角,总投资额 7.1 亿元,规划总建筑面积 8.65 万平方米。项目建成后,全面提升学校硬件环境和教育品质,助力高新区争创一流教育强区。
西安高新一中改扩建暨社会共享停车场项目作为“幸福高新”建设重点项目之一,将学校教室由 32 间增加至 52 间,各类部室增加至 30 间,操场环形跑道升级至 300 米;新建可以容纳 700 人的报告厅,室内篮球场、羽毛球场等场馆,地下车库机动车停车位 450 个。项目将错时对市民开放停车位、室内体育场馆、操场,缓解城市基础设施压力。
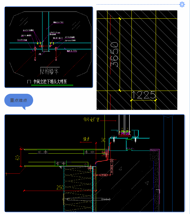
01项目难点
01 深化设计难点
本工程外门窗系统多,主要系统有十多种;型材规格种类多,其中玻璃板块种类为5种,金属板种类为4种;同时本项目门窗分格大,装饰线条设置较多。要保证不同规格玻璃、装饰线条在同一完成面上对幕墙门窗构造提出了较高要求。
通过采用 BIM模型对收口进行深化设计,对窗套收口进行模拟拼接。施工过程合理安排材料下单规格及尺寸,安排施工顺序。同时根据模型进行方案优化,节点改进,从而提高施工质量和观感质量,在施工前对工人进行可视化技术交底。
02 加工制作难点

门窗系统;型材种类多,门窗型材80多种,幕墙型材20余种。不同材料的拼装、构造是门窗加工制造的难点。
用二维图纸辅以三维视图,使技术人员与施工人员的技术交底工作形象具体,避免理解歧义。
03 工程重点难点
门窗与主体结构连接、交界部位防水处理、装饰线条、大板块蜂窝铝板的平整度,这些工程的重点、难点,我们技术人员和现场施工人员通过不断沟通、探讨,最终拿出最优解决方案。
02 项目进程

因学校项目不同于其它项目,该项目不仅工期要求紧,质量要求更高,孩子们学习生活的地方,质量上容不得半点马虎,项目进场后,工程部迅速做出反应,制定了合理的工作安排,力保项目如期交付。
自进场以来,项目组员工全身心地投入,按照各自的分工有条不紊地开展工作,夏日酷暑,他们主动放弃周末休息,发扬“五加二”、“白加黑”的苦干、实干精神,自我施压。施工现场,几百名工人和项目管理人员顶着烈日,坚守在工地上,不惧高温抢工期,挥汗如雨抓进度,昼夜奋战,全力推进项目建设。为保证项目施工进度,项目部建立周督查制度,严格落实管理人员到岗制度,优化施工组织,细化施工计划,快速协调现场各工序有效衔接,并增加机械和施工班组,只为能让孩子们早日搬进宽敞明亮的新教室。
项目人员日夜抢工
项目部及相关负责人定期开会沟通,跟进工程进度
1、实施监督各级进度计划(周、月、季计划)的执行情况,定期、严格审查施工质量,保质保量保时效的完成任务;
2、加强与甲方、监理单位、设计单位的沟通与协调,出现问题快速解决,避免造成工期延误;
作为“翔远人”项目组员工们面对压力勇往直前、主动承担、团结协作、永不服输的翔远精神让我们交出了一份满意答卷,每一次机遇和挑战对我们来说都是一次升华和蜕变,感谢这些在压力面前从不低头、勇往直前的小伙伴们,你们的拼搏奉献精神铸就了我们翔远公司的企业灵魂,希望这种拼搏精神一直伴随我们,向我们奋战在项目部一线的各位领导和员工致敬!
7月15日
项目迎来千余名师生参观
共同领略校园的全新风貌
实景拍摄展示
我们翔远全员统一思想,凝心聚力,抓严抓紧、抓实抓细各项工作,着力建设重点工程、民生工程、形象工程,以高标准工程展示公司实力、影响力。我们翔远是一支业务过硬、能打硬仗的队伍,全员发力,勠力同心、砥砺奋进,全力以赴,赶进度、抓质量、保安全,以“时不我待、只争朝夕”的魄力,“冲锋在前、永不放弃”的韧劲,完成每一项艰巨的任务,为我们的城市增添光彩。
浏览量:1412